Popis nemovitosti

Nabízíme prodej stylového zrekonstruovaného domu 5+1 s velkou stodolou, bazénem a zahradou v malebné a vyhledávané obci Vitiněves. Jedná se o zděný dům, který je připraven k okamžitému nastěhování – včetně vkusného nábytku, který je součástí prodeje.
Dispozice:
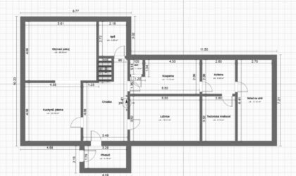
V přízemí se nachází prostorná vstupní hala propojená s chodbou, z níž vstupujete do velké kuchyně s jídelnou, která plynule navazuje na útulný obývací pokoj. Dále zde najdete ložnici se soukromou koupelnou (vana + příprava na sprchový kout), samostatnou toaletu, technickou místnost s kotlem (automat na uhlí) a dva boilery ( na solární systém).
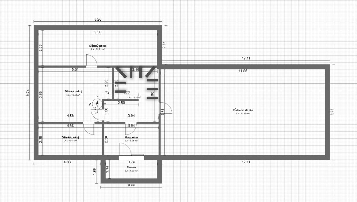
Do horního patra vede centrální schodiště, kde jsou umístěny tři dětské pokoje, plnohodnotná koupelna se sprchovým koutem a toaletou a vstup na venkovní verandu.
Zázemí a exteriér:
Za domem se nachází prostorná stodola o ploše 200 m², v současnosti využívaná jako dílna, posilovna a voliéra. Přes stodolu vstoupíte na vkusně upravenou zahradu s bazénem a dostatkem soukromí. Nechybí ani kopaná studna pro zalévání či napouštění bazénu, zastřešené parkování a příjemné kryté posezení pro chvíle odpočinku.
Rekonstrukce a technický stav:
Dům prošel mezi lety 2016–2021 rozsáhlou a kvalitní rekonstrukcí:
nová střešní krytina
zateplení fasády i stropů
plastová okna
rozvody elektřiny (měď), vody a odpadů (plast)
nové omítky, sádrokartonové podhledy, podlahy (plovoucí i dlažby)
topení v mědi + nová topná tělesa
napojení na kanalizaci
solární ohřev vody
plně vybavená kuchyň se značkovými spotřebiči.
Další přidanou hodnotou je možnost rozšířit obytný prostor o cca 90 m² nad technickou místností.
Tato nemovitost představuje ideální spojení moderního komfortu, soukromí a blízkosti přírody. Ať už hledáte domov pro svou rodinu, místo k odpočinku nebo prostor pro své koníčky, tento dům v srdci Vitiněvsi Vás nadchne.
Neváhejte mě kontaktovat pro více informací nebo domluvení prohlídky – rádi Vás přivítáme v místě, kde se žije srdcem.
Vitiněves – kouzelné místo, kde můžete začít nový život v klidu a harmonii s přírodou.
Objevte kouzlo malebné obce Vitiněves, která se nachází jen pár minut od historického Jičína, na dosah Českého ráje i Krkonoš. Tato poklidná vesnička je ideálním místem pro ty, kteří touží po úniku z ruchu města a hledají opravdový domov – místo, kde se každý den nese ve znamení pohody, vůně lesa a zpěvu ptáků.
Vitiněves nabízí nejen krásnou přírodu, ale také klidné sousedské prostředí a přívětivou atmosféru. Dominantou obce je malebný kostel sv. Jana Křtitele a nechybí zde ani občanská vybavenost, potřebná pro pohodlný každodenní život.
Ať už hledáte trvalé bydlení, víkendové útočiště nebo inspirativní prostor k tvoření, Vitiněves Vás okouzlí svou jednoduchou krásou, čistým vzduchem a výhledy, které vás neomrzí.

Atributy nemovitosti

  • Cena 8 890 000 / za nemovitost
  • Stav objektu Po rekonstrukci
  • Umístění objektu Klidná část obce
  • Poloha objektu Samostatný
  • Zástavba Obytná
  • Typ domu Patrový
  • Budova Cihlová
  • Plocha zastavěná 290
  • Plocha podlahová 200
  • Plocha užitná 290
  • Plocha pozemku 1229
  • Rok rekonstrukce 2021
  • Voda Dálkový vodovod
  • Topení Ústřední tuhá paliva
  • Odpad Veřejná kanalizace
  • Elektřina 400V
  • Doprava Autobus, Silnice, Vlak
  • Ener. náročnost C (úsporná)

Lokalita nemovitosti

Makléř

Emil Koval

  • koval@slezskereality.cz
  • +420 608 720 566

Zanechte nám vzkaz

Kontaktujte nas