Prodej, Pozemky Pro bydlení, 643 m2

  • Prodej
  • Exkluzivní
  • Novinka

Popis nemovitosti

Prodej stavebního pozemku – Ostrava, Nová Bělá, ul.Lýčková
Naše společnost nabízí k prodeji atraktivní stavební pozemek určený k rezidenční výstavbě v klidné lokalitě Ostrava – Stará Bělá, ulice Lyčkova.
Pozemek má výměru cca 643 m² (rozměry přibližně 36 × 20 m) a je z poloviny oplocený. Přístup k pozemku je zajištěný podílem na cestě.
Inženýrské sítě:
voda na hranici pozemku
kanalizace se plánuje vybudovat v tuto chvíli čištička.
elektřina – přípojka již přivedena k pozemku
Ke stavbě rodinného domu je již vydané koordinační stanovisko.
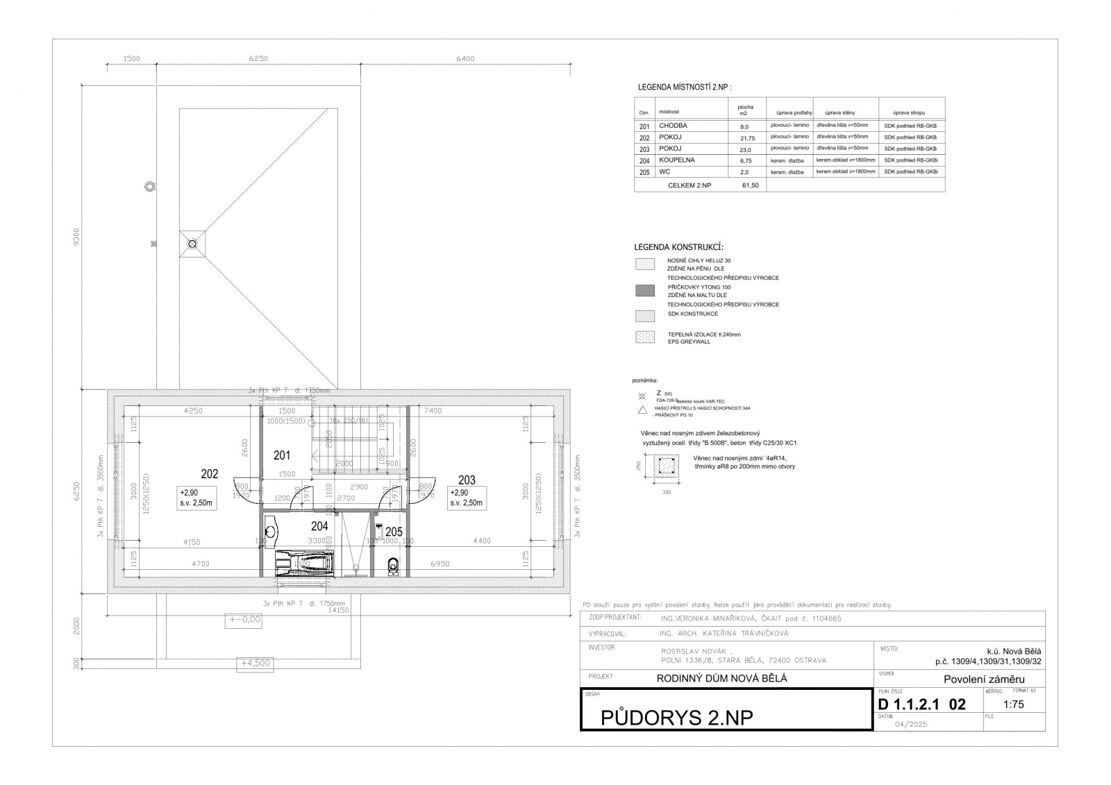
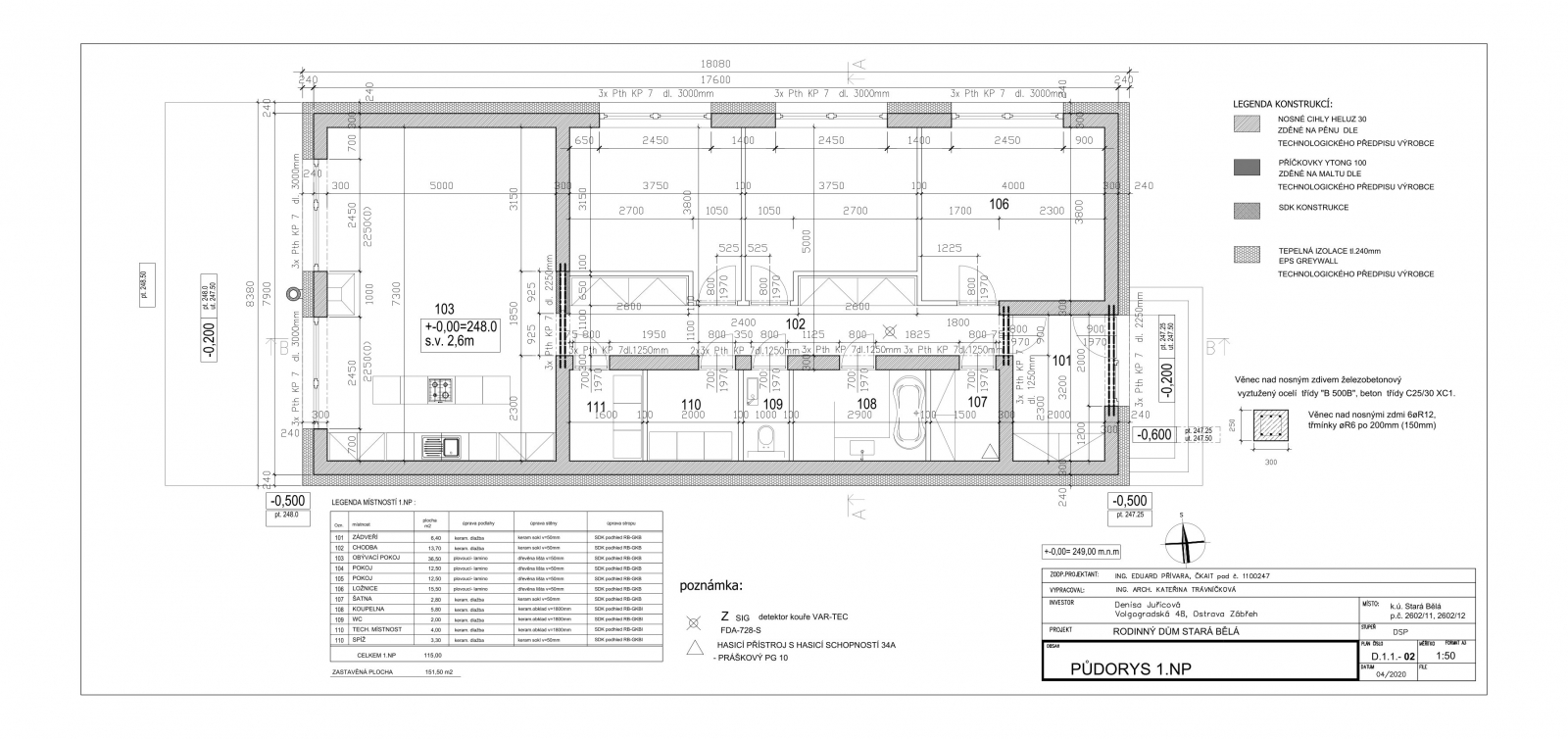
V případě koupě pozemku nabízíme možnost výstavby rodinného domu dle individuálních představ klienta.
Fotografie domu v inzerci je pouze ilustrační.
Stará Bělá je vyhledávaná městská část Ostravy, která nabízí ideální kombinaci klidného venkovského prostředí a výborné dostupnosti do centra města. Nachází se v jižní části Ostravy a je oblíbená zejména pro rodinné bydlení díky své zeleni, prostoru a příjemné atmosféře.
Oblast je charakteristická převážně zástavbou rodinných domů, novostaveb i starších rekonstruovaných domů. Lokalita působí klidně a bezpečně, s minimálním průmyslovým ruchem, což ocení především rodiny s dětmi.
Ve Staré Bělé je k dispozici základní občanská vybavenost – mateřská a základní škola, obchody, restaurace, pošta, lékař i sportovní zázemí. Nechybí dětská hřiště, sportoviště ani možnosti pro volnočasové aktivity. V okolí se nachází dostatek zeleně, polí a lesíků, které jsou ideální pro procházky, běh nebo cyklovýlety.
Dopravní dostupnost je velmi dobrá – autem jste v centru Ostravy přibližně do 15 minut. Lokalita je napojena i na městskou hromadnou dopravu.
Stará Bělá je tak skvělou volbou pro ty, kteří chtějí bydlet v klidném prostředí s přírodou na dosah, ale zároveň mít město a veškeré služby rychle dostupné.

Atributy nemovitosti

  • Cena 2 890 000 / za nemovitost
  • Stav objektu Velmi dobrý
  • Umístění objektu Klidná část obce
  • Poloha objektu Samostatný
  • Zástavba Obytná
  • Typ domu Přízemní
  • Plocha pozemku 643
  • Voda Dálkový vodovod
  • Elektřina 400V

Lokalita nemovitosti

Makléř

Emil Koval

  • koval@slezskereality.cz
  • +420 608 720 566

Zanechte nám vzkaz

Kontaktujte nas